Vente Appartement PARIS 8EME ARRONDISSEMENT
470 000 € HAI - 47.25 m2 - 1 Chambre - Réf. MON393

Vente Appartement
PARIS 8EME ARRONDISSEMENT
470 000 € HAI
Prix Honoraires Inclus : 470 000 €
Honoraires : 5,26% TTC*
Prix Honoraires Exclus : 446 500 €
* Les honoraires d'agence seront intégralement à la charge de l'acquéreur
  • 2 Pièces
  • 1 Chambre
  • 47.25 m2

VILLIERS - CHAPTAL - 2 Pièces

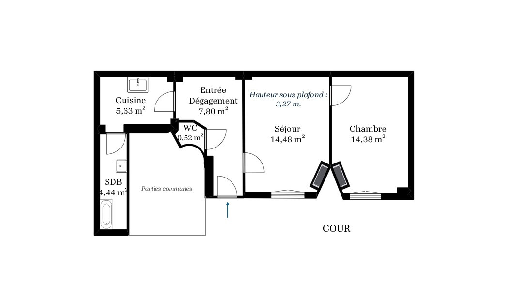
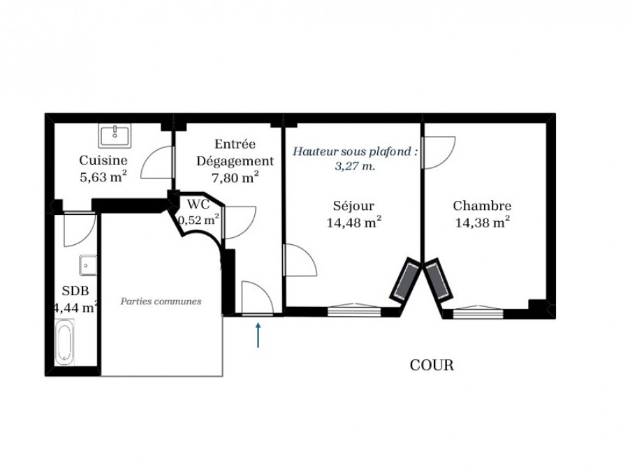
Rue Andrieux - Dans un bel immeuble en pierre de taille de 1900, nous vous proposons un appartement de 47,25m² - à rénover - comportant deux pièces - parquet moulures cheminées - hauteur sous plafond de 3,30m.
Situé au rez-de chaussé de l'immeuble, l'appartement comprend une entrée, un séjour, une chambre, une salle de bains, une cuisine et un WC séparé. Possibilité de profession Libérale. Une cave complète ce bien.
Réfection de la toiture votée et payée.
A proximité des transports et des commerces.


Les informations sur les risques auxquels ce bien est exposé sont disponibles sur le site Géorisques : www.georisques.gouv.fr
  • Référence : MON393
  • Ville : PARIS 8EME ARRONDISSEMENT
  • Transaction : Vente
  • Type de bien : Appartement
  • Prix HAI : 470 000 €
  • Syndicat en procédure : NC
  • Copropriété - nombres de lots : 23
  • Charges annuelles : 2 100
  • Surface : 47,25 m2
  • Année de construction : 1900
  • Exposition : Nord
  • Etage du bien : RDC
  • Nbr d'étages : 6
  • Surface séjour : 47,25 m2
  • Nbr de pièces : 2
  • Nbr de chambres : 1
  • Nbr SDB : 1
  • Chauffage : Electrique
Performance énergétique (en KWh/m2/an)
Dpe
Performance climatique (en Kg éq CO2/m2/an)
Ges
Montant estimé des dépenses annuelles d’énergie pour un usage standard : année de référence - de 0€ à 0€
%
%

Vos mensualités

*apport calculé sur une base de 20%

Informations non contractuelles, fournies à titre indicatif
75 - Paris
Montant En % du prix du bien
Emoluments notaire %
Copies & formalités notaire 800 %
Total notaire %
Droits de mutation 5.80%
Publicité foncière 0.10%
Debours 400 %
TVA (sur part notaire) %
Total %
Informations non contractuelles, fournies à titre indicatif
Contactez-nous
* champs obligatoires
Biens similaires
Offre en cours
468 000 € HAI
RUE DU GENERAL FOY - Dans un immeuble parfaitement entretenu, dont le ravalement a été effectué, nous vous proposons un appartement - 2-3 Pièces à rénover, au 4ème étage sans ascenseur, sur rue et sur...
  • Nbr de pièces
    2
  • Nbr de chambres
    1
  • Etage du bien
    4
  • Nbr d'étages
    4
468 000 € HAI
* Les honoraires d'agence seront intégralement à la charge de l'acquéreur
  • 2 Pièces
  • 1 Chambre
  • 40.43 m2
Réf. MON413
445 000 € HAI
Un beau 3 Pieces de 44, 30M2 , en parfait etat et parfaitement aménagé , Rue Marcadet rue Ramey, au 2eme etage dans une belle copropriété d'un immeuble en pierre de taille très bien entretenu ,avec...
  • Nbr de pièces
    3
  • Nbr de chambres
    2
  • Etage du bien
    2
  • Nbr d'étages
    6
445 000 € HAI
* Les honoraires d'agence seront intégralement à la charge de l'acquéreur
  • 3 Pièces
  • 2 Chambres
  • 44.3 m2
Réf. MON382
560 000 € HAI
Paris 14ème arrondissement - Avenue du General Leclerc/Rue Sarette- Dans un immeuble 1970 env., au 3ème étage avec ascenseur et gardien, nous vous proposons un bel appartement de 68m² en bon état comp...
  • Nbr de pièces
    3
  • Nbr de chambres
    2
  • Etage du bien
    3
560 000 € HAI
* Les honoraires d'agence seront intégralement à la charge de l'acquéreur
  • 3 Pièces
  • 2 Chambres
  • 68.07 m2
Réf. MON396
Nous contacter
Voir le téléphone
MONCIM

92 rue de Monceau
75008 PARIS

Nous suivre sur les réseaux sociaux :

  • Alerte email
  • Favoris 0
  • 0